


Marine Telescopic Boom Crane: Key Benefits & Features
-
Works Well in Marine Settings
Its compact and strong design saves deck space. It handles different loads (2–10T standard, up to 20m reach; custom sizes are available).
The telescopic boom extends to cover a larger area. It helps move cargo, equipment, and people easily. -
Accurate and Easy Control
It offers smooth and precise speed control even in rough seas.
It can perform two movements at the same time (at lower speeds), which improves efficiency.
You can operate it from the platform or use a remote control for better safety and convenience. -
Built for Tough Conditions
It is made with anti-rust materials and strong build quality. It works in saltwater, cold climates, and extreme weather.
It can rotate 360° non-stop for full deck access.
An emergency lowering system ensures safe operation. -
Easy to Maintain and Reliable
It has its own electro-hydraulic power pack, so it doesn’t rely on external power.
Its modular design makes repairs and part changes simple.
An optional load monitor prevents overloads and extends service life. -
Custom Options and Meets Standards
You can choose special models for cold climates, enclosed cabins, personnel baskets, and more.
It meets CE/SGS/ISO, DNV/GL, and ABS standards for marine use.
Optional extras include floodlights, star-delta starters, rotation limit switches, and external power packs. Worldwide Shipping and Support
We offer low-cost shipping: by container or in bulk, based on your needs.
With over 20 years of experience, we have delivered more than 78,960 cranes (as of 2020) and have been in global trade for over 15 years.
We provide after-sales support for installation, maintenance, and troubleshooting.
We strictly control every step of production. We use high-strength, corrosion-resistant materials to make sure the crane works reliably in harsh marine conditions.
We use advanced automated equipment and precise manufacturing methods. Every part is checked for accurate size and proper assembly to ensure zero errors.
This crane can lift and place heavy and large equipment—like underwater robots and deep-sea sampling devices—safely and smoothly from the ship to the sea or seabed. Even when the sea is rough, it stays stable and helps collect ocean data.
It also quickly loads and unloads supplies like food and fuel. In emergencies, it shortens delivery time and supports longer expeditions.
Before leaving the factory, each crane goes through strict testing. We check the boom movement, lifting accuracy, and stability in complex conditions.
Its unique full-fold boom design allows flexible operation in tight spaces. It works well in small docks or inside large ship cabins, improving efficiency in shipbuilding and repair.
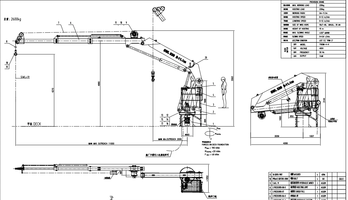
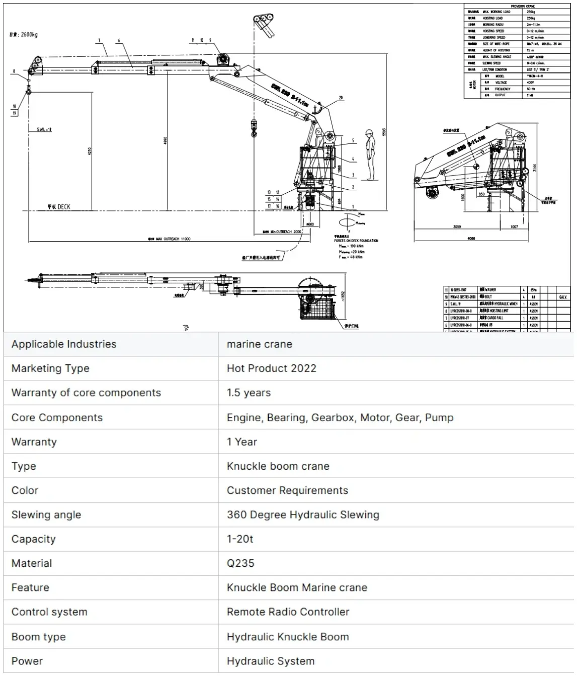
This marine telescopic crane lifts goods safely, quickly, and flexibly. Its load moment ranges from 100 kg to 40,000 kg, and it can be customized.
It can lift up to 40 tons with a working radius of up to 40 meters. It is painted with anti-corrosion C5M marine paint for longer life.
It comes with a custom control platform and uses an integrated electric-hydraulic drive/HPU. It rotates 360° and can be used in low or high temperatures. It also has a good anti-collision system.
One shipyard successfully installed the crane under our guidance and shared photos from the site.
Installation steps: Make and install the base; bolt the column to the base using a flange; install the platform and seat; attach the boom; finally, test the crane.
A deck crane is a type of ship lifting equipment. It is usually installed on the deck. It uses advanced electric, hydraulic, and mechanical technology. It is easy to operate, resistant to impact, and performs well. It is safe and reliable. It makes good use of limited space in ports, yards, and other areas. It works efficiently and can handle different types of goods. It is especially suitable for dry bulk cargo.
Why Choose Our Marine Telescopic Boom Crane?
✔ Saves space – Uses deck area well without losing power.
✔ Works in all weather – From tropical ports to Arctic offshore rigs.
✔ Ready for future upgrades – Supports IoT load monitoring and automation.
✔ Trusted worldwide – Supported by 68,000m² production facilities and 2,700+ skilled engineers.
Ideal for: Port cargo handling, offshore oil and gas support, ship repairs, military logistics, and aquaculture.
Application Areas of Marine Telescopic Boom Cranes
Offshore Wind Power Installation
Lifts large parts like fan blades, towers, and nacelles. Supports construction and maintenance of offshore wind farms. For example, a 2500-ton crane can lift weights equal to 1300 SUVs.
Cross-Sea Bridge Construction
Lifts heavy parts like piers and bridge decks. Works well even in complex sea conditions.
Heavy Material Handling at Sea
Loads and unloads large items like oil platform equipment and ship parts. Especially useful in limited space on ships or platforms.
Marine Engineering Vessel Operations
Installed on wind power installation ships and crane ships. Provides flexible lifting capacity for efficient offshore projects.
Marine Exploration and Research
Small cranes handle ocean survey equipment, load supplies, and assist in emergencies. Supports safety and efficiency in ocean research and adventures.
These applications show the crane’s strength in lifting capacity, flexibility, and adaptability. It is widely used in ocean energy, infrastructure, and research.
Auxiliary marine cranes help with loading and handling during wind turbine installation. They include anti-collision systems. These systems are reliable and proven in harsh marine conditions.
As an important type of deck machinery, these hydraulic cranes are used for moving supplies and construction materials. The safe working load is designed for "Standard Condition II" lifting.
This hydraulic crane meets the following standards:
China Ship Inspection Bureau 《Rules for the Statutory Survey of Lifting Appliances》(1999)
GB/T 12932-1991 《Ship-mounted Deck Crane》
CB/T 3883-1999 《Factory Test Methods for Ship-mounted Hydraulic Cranes》
China Classification Society 《Rules for the Survey of Lifting Appliances on Ships and Offshore Facilities》(2007)
Product Features:
✔ Safe and reliable design, attractive appearance
✔ Small installation space, light weight, high lifting capacity
✔ High-efficiency integral rotation system, large torque
✔ Uses well-known hydraulic parts for higher reliability
✔ Simple deck layout, easy operation, high loading efficiency
→ Contact us today for a customized solution for your vessel!








